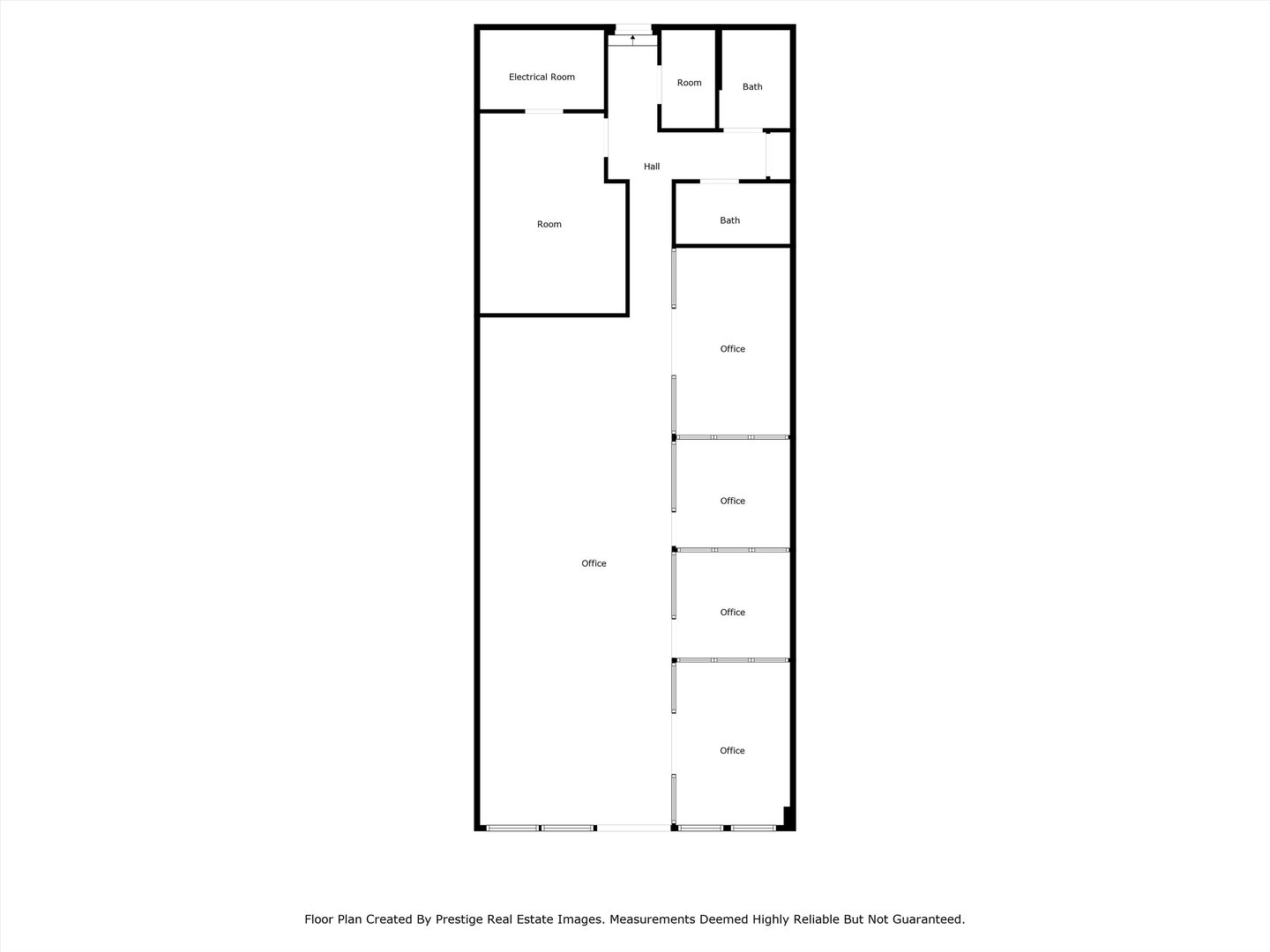
Some units available for immediate leasing, or customize the space to suit your business requirements perfectly. Seize the opportunity to distinguish yourself with outstanding visibility along the vibrant Jefferson Ave, where an impressive daily traffic count of 17,500 passing vehicles ensures maximum exposure. Welcome to the Dairy Center Professional Center in Joliet premier business hub offering unparalleled prominence! Strategically located with easy accessibility on Jefferson St., this property thrives amidst the glow of over 17,500 daily passing vehicles. Zoned B-3 provides a versatile space suitable for a wide range of commercial ventures. Elevate your business presence and unlock its full potential at Dairy Center Professional Center! Conveniently positioned near Downtown Joliet and major highways, this site guarantees seamless access for both your business and clientele. With over 500 -1600 square feet available, don’t miss the chance to expand your business horizons. $ 12 per sqft. Open for all business types. 3 spaces available, see the floor plan in the pictures.
407 Jefferson Street Joliet, IL 60435
Contact Us About This Listing
1016 State Street Lockport, IL 60441
Huge Price Drop – Don’t Miss This Deal Exceptional Investment Opportunity Prime Downtown Lockport Property Seize a rare chance to own a remarkable asset in the heart of Downtown Lockport. This impressive three-story brick building, located at 1016 State St., was constructed in 2023 and offers a unique blend of luxury and versatility in an unbeatable location. The property features four modern, high-end residential rentals alongside a flexible storefront/office space, making it an ideal investment opportunity. Fully leased, the building ensures immediate returns and is perfect for investors seeking a turnkey solution with a strong tenant base in both the residential and commercial sectors. Key Features: Four Sophisticated units: Thoughtfully designed with contemporary finishes, offering residents a luxurious living experience. Storefront/Office Space: An obvious commercial space that provides excellent exposure, perfect for retail or office use. Just steps away from the train station and close to major highways and Lewis University, ensuring easy accessibility for tenants and clients. This is your opportunity to invest in a high-yield, prime-location property that promises immediate cash flow and long-term value. Don’t let this opportunity slip away-secure a top-tier asset in one of Lockport’s most vibrant areas.
Contact Us About This Listing
407 Jefferson Street Joliet, IL 60435
Some units available for immediate leasing, or customize the space to suit your business requirements perfectly. Seize the opportunity to distinguish yourself with outstanding visibility along the vibrant Jefferson Ave, where an impressive daily traffic count of 17,500 passing vehicles ensures maximum exposure. Welcome to the Dairy Center Professional Center in Joliet premier business hub offering unparalleled prominence! Strategically located with easy accessibility on Jefferson St., this property thrives amidst the glow of over 17,500 daily passing vehicles. Zoned B-3 provides a versatile space suitable for a wide range of commercial ventures. Elevate your business presence and unlock its full potential at Dairy Center Professional Center! Conveniently positioned near Downtown Joliet and major highways, this site guarantees seamless access for both your business and clientele. With over 500 -1600 square feet available, don’t miss the chance to expand your business horizons. $ 12 per sqft. Open for all business types. 3 spaces available, see the floor plan in the pictures.
Contact Us About This Listing
1016 State Street Lockport, IL 60441
Huge Price Drop – Don’t Miss This Deal Exceptional Investment Opportunity Prime Downtown Lockport Property Seize a rare chance to own a remarkable asset in the heart of Downtown Lockport. This impressive three-story brick building, located at 1016 State St., was constructed in 2023 and offers a unique blend of luxury and versatility in an unbeatable location. The property features four modern, high-end residential rentals alongside a flexible storefront/office space, making it an ideal investment opportunity. Fully leased, the building ensures immediate returns and is perfect for investors seeking a turnkey solution with a strong tenant base in both the residential and commercial sectors. Key Features: Four Sophisticated units: Thoughtfully designed with contemporary finishes, offering residents a luxurious living experience. Storefront/Office Space: An obvious commercial space that provides excellent exposure, perfect for retail or office use. Just steps away from the train station and close to major highways and Lewis University, ensuring easy accessibility for tenants and clients. This is your opportunity to invest in a high-yield, prime-location property that promises immediate cash flow and long-term value. Don’t let this opportunity slip away-secure a top-tier asset in one of Lockport’s most vibrant areas.



