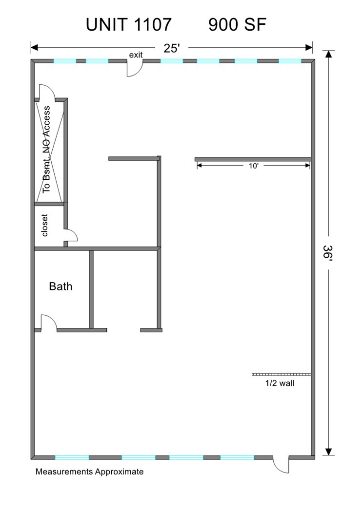
Two prime visibility storefronts in strip center at signalized intersection on Route 31 and Edgewood Dr. with 21,200 vpd. Unit 1107: 900 end unit, former motorcycle apparel shop. $1,125/mo. Gross. Unit 1111: 1,920 SF with large front windows. Ideal for salon, spa, or a multitude of retail uses. $2,400/mo. Gross.
1107 Main Street 1107-1111 Algonquin, IL 60102
For Rent
1107 Main Street 1107-1111
Algonquin, IL 60102
Type:
Commercial Lease
Shopping Center
Agent:
Shari Haefner
Agent Email: shari.commercialrebroker@gmail.com
Broker:
Premier Commercial Realty
Broker Phone: 847-854-2300




