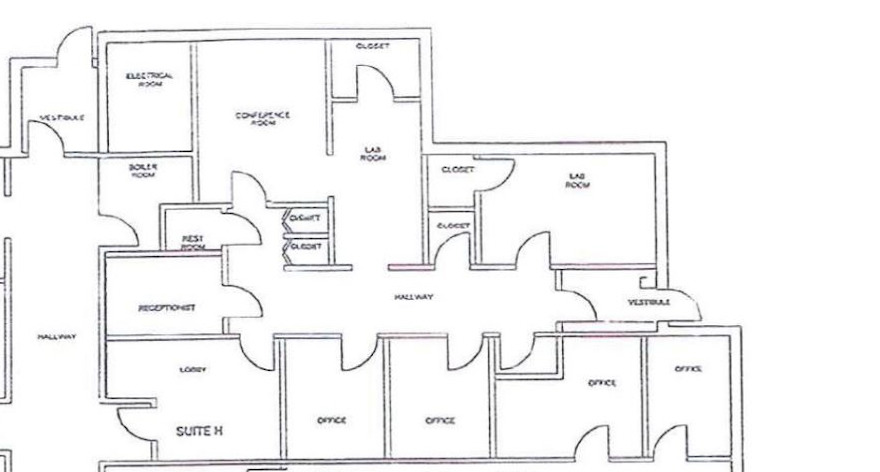
Huge first floor unit with almost 1600 sqft! Ample parking, great visibility, and lots of foot and car traffic. Currently set up with a waiting room/reception and multiple exam rooms. Ideal for a health care professional, but can be built out to your desire. Has both a private and common entrance with a private restroom and common restrooms hall.

