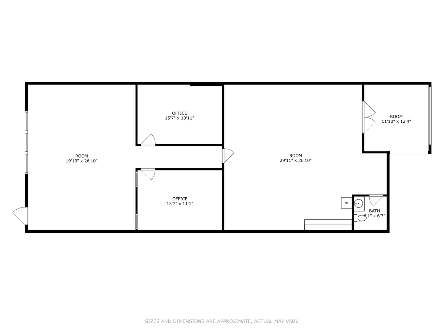
Prime Office/Warehouse Condo for Sale in Mundelein/Vernon Hills This fully renovated 1,900 sq. ft. office suite with a small warehouse is located in a highly sought-after industrial park. Featuring a modern reception area, 2 private offices, a kitchen space, a bathroom, a storage room, and a convenient dock for unloading, this space offers exceptional functionality for your business. The building is constructed with durable brick, and there is ample parking for both employees and visitors. The association of 709.21 per quarter covers exterior maintenance, lawn care, snow removal, scavenger services, and common insurance, providing peace of mind for the owner. Located with easy access to major highways, a train station, and local shopping, this property is ideal for businesses seeking both convenience and visibility. The well-managed industrial park is home to many other thriving businesses. Don’t miss out on this great opportunity!
1230 Allanson Road Mundelein, IL 60060
Price Reduced
For Sale
1230 Allanson Road
Mundelein, IL 60060
Price: $229,000
Type:
Commercial Sale
Agent:
Dominick Clarizio
Agent Email: dom@atproperties.com;domandjudie@atproperties.com
Broker:
@properties Christie's International Real Estate
Broker Phone: 847-295-0700









