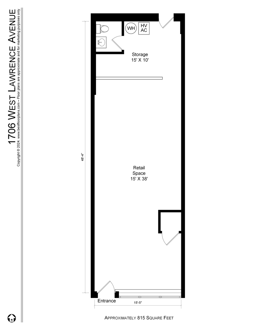
This retail space for lease is currently a Cleaners/Alterations shop. Counter and rack system still there. Space is 800 Square Feet and has 1 bathroom, 40 gallon hot water tank and 4 year old HVAC system. Located in Ravenswood/Lincoln Square. Nearby CVS, Sears, Mariano’s grocery & Byron’s Hot dogs. AREA HIGHLIGHTS: 1 block from Lawrence and Ravenswood Metra Train stop and 3 blocks from Brown Line L Stop w/ 307,000 annual riders, High Household Incomes and High Pedestrian and vehicle Traffic.





