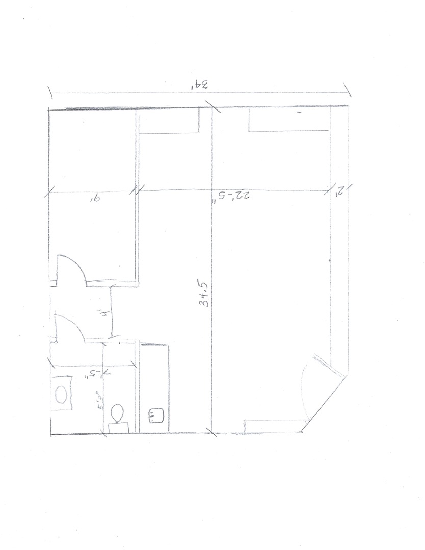
WONDERFULLY UPDATED CORNER STOREFRONT FOR LEASE WITH IMMEDIATE AVAILABILITY. THIS SUNNY CORNER IS LOCATED AT THE INTERSECTION OF MILWAUKEE AVE AND AVERS. THE CURRENT BUILD OUT OFFERS FRESHLY PAINTED WALL SURFACES,NEWLY BUILT SHELVING AND BOOK CASES, A RECEPTION DESK AREA, PRIVATE OFFICE, FLOOR TO CEILING WINDOWS AND MORE! RETAIL READY AND GREAT USE OF SPACE FOR OFFICE, SMALL RETAIL ESTABLISHMENTS, HAIR SALON, MASSAGE SPA, NAIL SPA ETC. SEE IMAGES FOR MORE DETAILS ON FLOOR PLAN AND FINISHES. AVAILABLE IMMEDIATELY
3108 MILWAUKEE Avenue 1E Chicago, IL 60618
For Rent
3108 MILWAUKEE Avenue 1E
Chicago, IL 60618
Type:
Commercial Lease
Neighborhood Storefront
Agent:
Wilfredo Aguilar Jr
Agent Email: waguilarproperties@gmail.com;waguilarproperties@gmail.com
Broker:
Compass
Broker Phone: 773-466-7150









