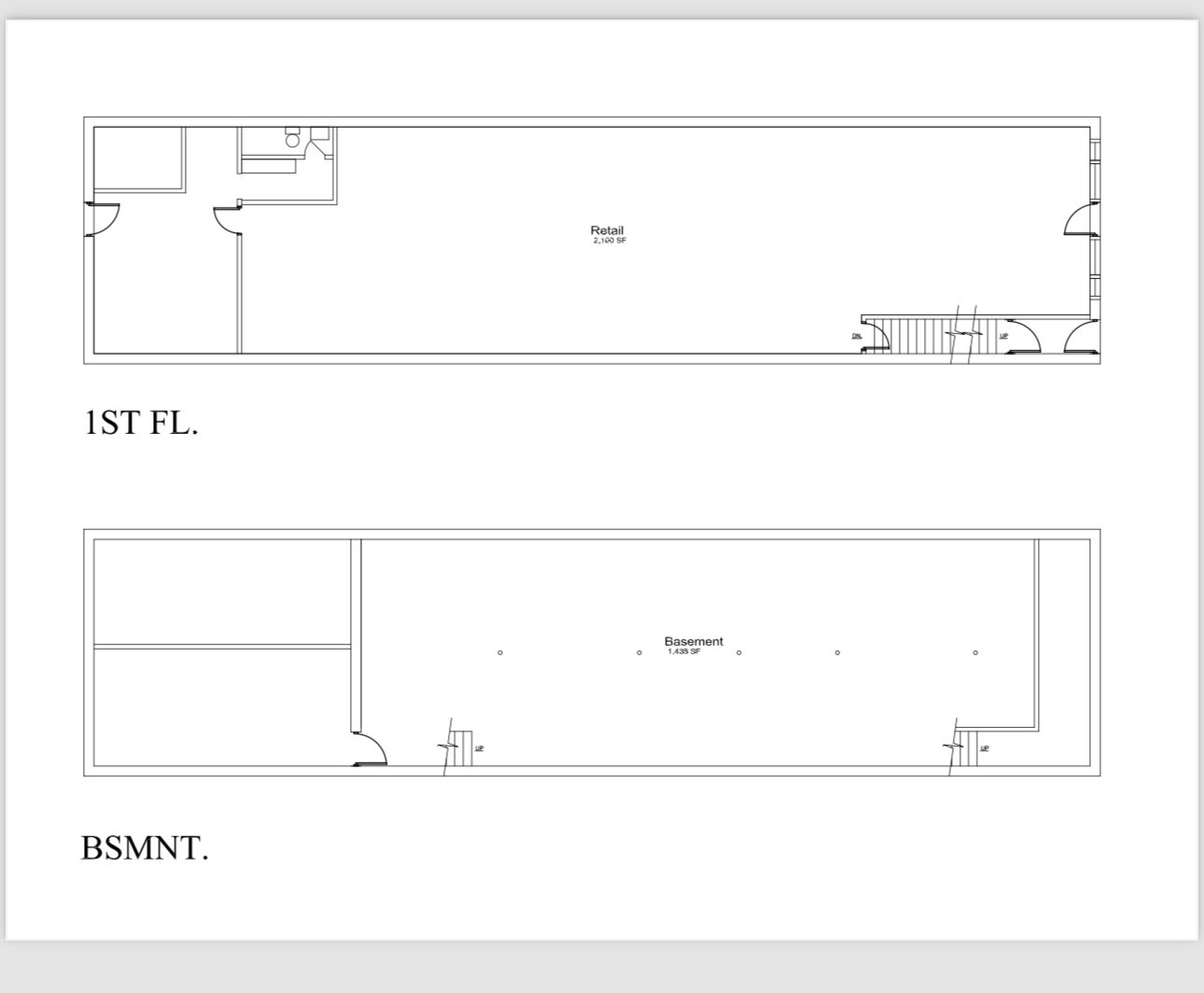
2,000 sf of street level retail/office space with additional 1,434 basement that can be built out. Located on very busy Cermak and Kedzie intersection. Convenient store thrived in this location for 20 years until it was abruptly closed by the City right before the Democratic convention. Ideal for convenience store or any other retail including fast food. Also well suited for medical, office, insurance, etc. Owner willing to do buildout for the right tenant. Contact us today to schedule a tour and see for yourself why our storefront is the perfect fit for your business.






