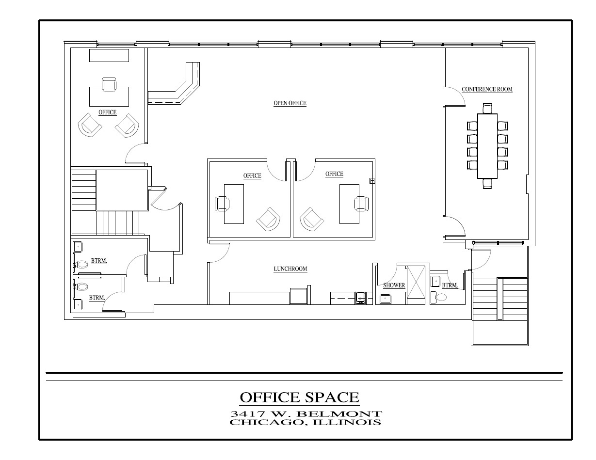
Professional Office Suite – 3,200 SF – The 2nd floor suite has abundant natural light, open space along with 3+ private offices, conference room, lunch counter with sink, multiple washrooms and one shower. Onsite parking and private entrance from Belmont Ave. Property located 1 block from Kennedy Expressway & CTA blueline Belmont station and multiple bus lines. Additional first floor flex space available if required









