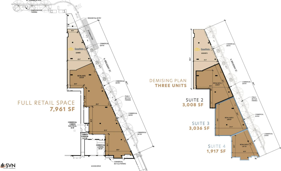
Optima Lakeview offers 6,047 SF (divisible) of premium retail space on North Broadway Street and located at the base of an award-winning 200-unit luxury apartment building. Retailers benefit from a built-in customer base, a high-income neighborhood, and proximity to popular brands like Whole Foods, Target, and Starbucks, as well as local favorites such as Ann Sather, Chicago Diner and Chilam Balam. Located just blocks from Wrigley Field and the Addison Red Line station.
3460 Broadway Street Chicago, IL 60657
For Rent
3460 Broadway Street
Chicago, IL 60657
Type:
Commercial Lease
Neighborhood Storefront
Agent:
Wayne Caplan
Agent Email: wayne.caplan@svn.com;wcaplan2003@yahoo.com
Broker:
Sperry Van Ness
Broker Phone: 312-676-1866
Broker Email: angela.corvo@svn.com








