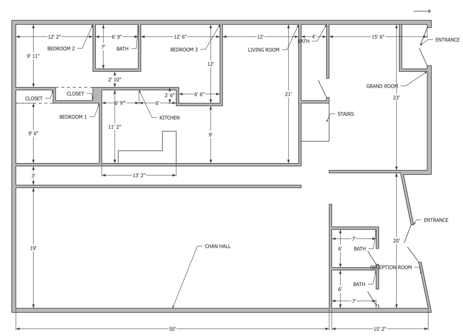
Rare opportunity with 5 contiguous lots for better land use. NX zoned. Very close to downtown Skokie in Central Business District. Walking distance to Chase Bank, Skokie Theater, Skokie Library, Village Hall, Bank of America, lots of restaurants, Assorted Retailers, Specialty Stores. Close to CTA Yellow line station and I-90/94. Three lots with one building each. The remaining two lots are vacant. 7848 Lincoln was a real estate company with office setting. 7852 Lincoln Ave building was a Chan Hall and a three bedroom apartment. Buildings are serviceable. Basement needs work. Or you can tear down and build to suit. Please consult: Skokie Village-Zoning Chapter, Appendix A-use table for all the permitted and special uses. Additional PINs are: 1028211002, 1028211003, 1028211004, 1028211005.








