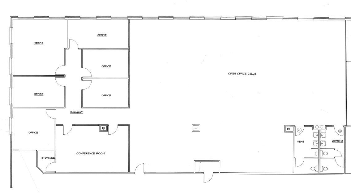
Second Floor office condo built out with six offices, conference room, cubicles in bull pen, multi-stall rest rooms in suite and heavy power in server room. Professional 2-story office building 10 minutes to Good Shepherd. Great window line provides natural light. Restaurants nearby, Owner will build out to suit. Heating and A/C incl. in CAM. Elevator in building.
912 Northwest Highway 200 Fox River Grove, IL 60021
For Rent
912 Northwest Highway 200
Fox River Grove, IL 60021
Type:
Commercial Lease
Agent:
Wayne Kurchina
Agent Email: Wayne@ILrealtyinc.com
Broker:
ILrealty, Inc. Kurchina & Assoc.
Broker Phone: 815-344-8900
Broker Email: wayne@ilrealtyinc.com

